Terrasse

Planlægning og projektering

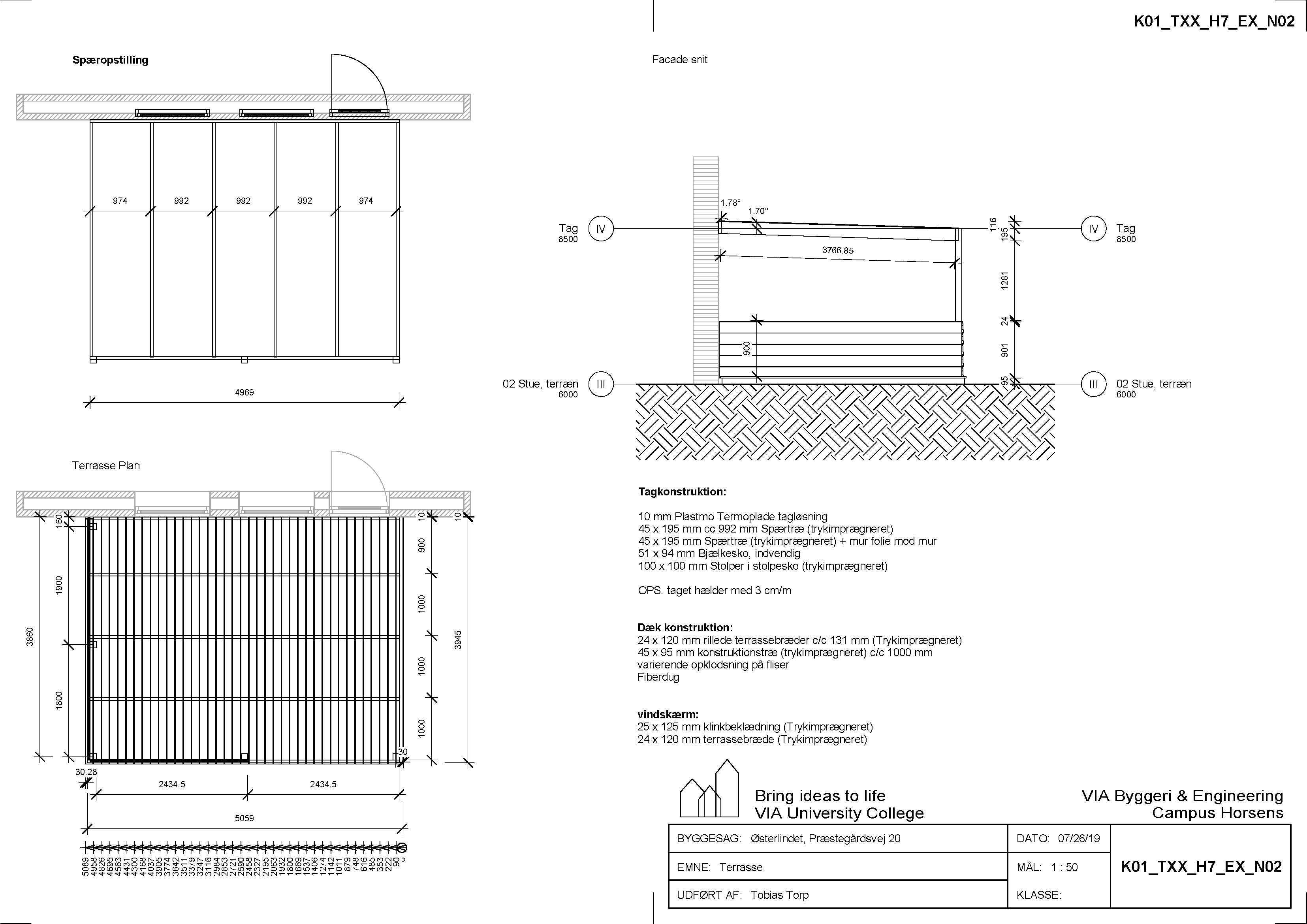
I min ferie mellem 2. og 3. Semester gik jeg tilbage til mine tømrefærdigheder, da jeg fik som opgave at projektere og udføre en overdækket terrasse. En fin lille ferie opgaver som var rigtig sjov at udføre.
Jeg skulle have flere ting med i overvejelserne under projekteringen af denne terrasse, mest fordi det som dikteret bredden var tagopbygningen da jeg gerne ville undgå at skære i termopladerne som kom i en fast længde og bredde. En af mine større udfordringer, var at jeg ikke havde regnet nok tolerance med ved c/c afstanden mellem spærene.

Godtroende som jeg var mente jeg at 5 mm ville være nok, men jeg endte med at skulle skære en lille smule af en af termopladerne. Dette var en af de ting jeg har taget med mig videre fra dette projekt. Alt i alt var det rigtig sjovt at arbejde med de arbejdstegninger som jeg selv havde projekteret & udarbejdet.

Billerder af projektet