3. semester

Semesteret

3. semester var delt op således at vi kunne lære noget om de forskellige roller, som man kan komme ud for i det virkelige liv. Rådgiver, Leverandør og Montageentreprenør. rollerne var inddelt i forskellige faser af semesteret.

Rådgiver

DISPOSITIONSFORSLAG

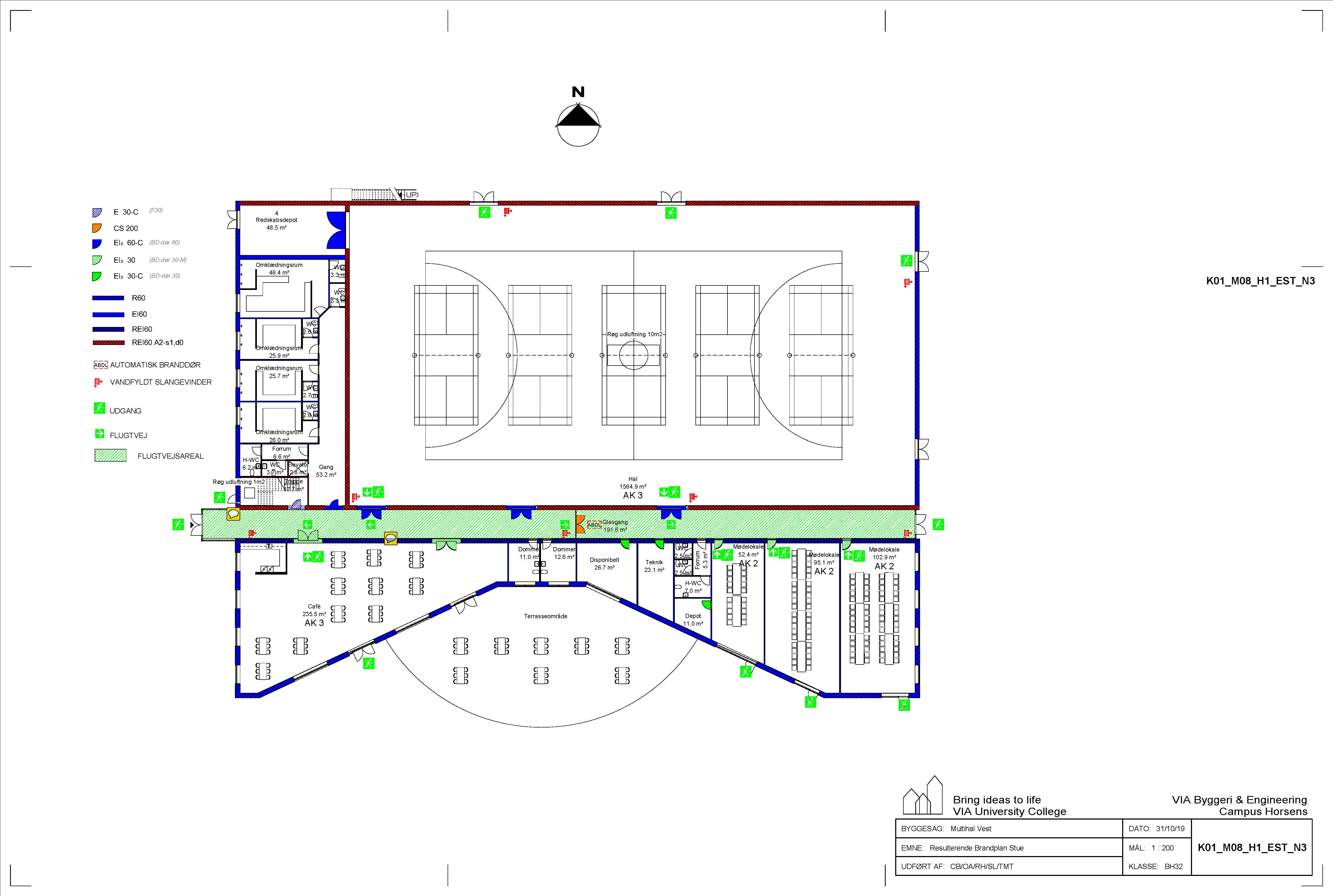
Det jeg koncentreret mig mest om var at lære at opstille en god brandplan, og overholde alle de forskellige brandkrav.
Dette blev gjort allerede i dispositionsforslaget, så vi kunne lave funktionskravsanalyser på de forskellige bygningsdele.

PROJEKTFORSLAG

For at det ikke blev for meget, skulle vi kun lave udbud på ydervægselementerne. Dette var nu stadig ret svært da vi stadig skulle løse alle de forskellige detaljer, så vi ikke spurgte efter noget som ikke kunne lade sig gøre.

MYNDIGHEDSPROJEKT

Derudover skulle vi også udforme nogle ret så store dokumenter i form af en Arbejdsbeskrivelse leverance, Arbejdsbeskrivelse montage og en byggesagsbeskrivelse som allesammen er dokumenter over 25 sider.

UDBUDSPROJEKT

Her lærte vi at arbejde med en online dokumentplatform kaldt iBinder, hvor vi opladede vores udbudsmateriale og holdt en professionel dialog med de ind spurgte leverandører, som i vores tilfælde var en gruppe fra Århus.

leverandør / montageentreprenør

Da vi skiftede til leverandør, fik vi Århus gruppens udbudsmateriale hvor vi så skulle lave et tilbud og projektere betonelementer.

Noget af det som tog længst tid var at lave elementtegninger til den fiktive fabrik vi skulle opstille.

Derudover skulle der udarbejdes detaljetegninger, montageplaner montagevejledninger og tidsplaner som alt sammen skulle tilpasses deres udbudsmateriale.

Refleksion på Semesteret

Jeg vil helt klart sige at dette semester har været et forvirrende og stressende semester men på samme tid et lærerigt semester.

Der var blevet jokket lidt med at 3. semester blev kaldt skilsmissesemestret, hvilket jeg helt klart godt kan forstå nu.

Derfor er jeg også rimelig stolt over at have fået karakteren 12 i sidste ende.